Maison Azuma

Introduction
L’une des premières œuvres de l’architecte autodidacte Tadao Ando Azuma House à Sumiyoshi, qui divise en deux un espace dédié à la vie quotidienne (composée d’une géométrie austère) en insérant un espace abstrait conçus pour convenir à vent et Lumière. Son but, dit-il, était d’introduire une question sur l’inertie qui a envahi les habitations humaines.
Merci à La Maison Azuma en 1976 a reçu un prix de l’Association japonaise d’architecture.
Situation
Situé dans Sumiyoshi, Osaka remplace une zone d’habitation traditionnelle construite en bois.
Alors que la zone dans laquelle il se trouve n’est pas la ville la plus chaotique, il ya un contraste frappant entre cette « boîte en béton» et de son environnement.
Concept
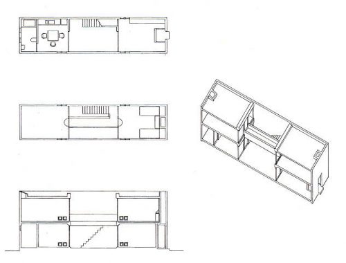
Construit entre le parti, cette propriété se trouve sur un terrain de 57,3 m2 et la superficie totale de 64,7 m2 est divisé en trois parties égales: deux volumes et un patio.
Il s’agit d’une boîte en béton qui occupe la totalité du site. Le bâtiment, centripète dans leur organisation de l’espace a un plan tripartite centrée sur un patio.
Espaces
Au rez-de-chaussée il ya un salon et une cuisine, séparées par un patio extérieur et l’escalier menant à l’étage supérieur, où il ya deux chambres reliées par une passerelle. Cet espace central se trouve la seule source de lumière naturelle tout au long.
La cour, qui agit comme la plaque tournante de la vie quotidienne de la maison, un salon séparé, situé à une extrémité du rez-de-chaussée, la cuisine et la salle de bain, situé dans un autre. A l’étage, la pépinière est confronté à la chambre des maîtres de l’autre côté de la cour, à laquelle on accède par un pont. Le bâtiment présente une façade à l’aveugle rue. La présence d’une porte suggère l’utilisation de cette boîte.
Matériaux
Le béton utilisé dans cette maison est faite de l’ornementation.

























