Maison à Moledo

Introduction
Un Eduardo Souto de Moura est généralement associée à l’école des architectes d’appel portugais Porto dirigés par Alvaro Siza. En fait, il a étudié et travaillé dans son bureau Siza 1974 à 1979. Il est, par conséquent, l’héritier d’une branche particulière du mouvement moderne, régionale, qui est resté fidèle à la cause même pendant les années du mouvement postmoderne, qui sera redécouvert et célébré internationalement dans les années 1990.
Mais Souto de Moura n’est en aucun cas un Siza occasion. Son architecture est simple, plus claire et abstraite, mais non moins intéressés par les qualités particulières du site.
Leurs maisons peut être interprété comme une série de variations sur un thème. Cet aspect de son travail a beaucoup à voir avec Mies van der Rohe, mais aussi a des influences d’autres artistes tard comme le sculpteur américain Donald Judd.
La maison est Moledo simple minimalisme, mais la vraie simplicité n’est pas facile à obtenir. Elle est le résultat d’un processus long et ardu d’analyse, de raffinement, de sélection et de prise de décision difficile.
Situation
La maison a été construite sur un terrain qui était autrefois la ferme, avec une belle vue sur l’océan Atlantique dans une petite ville dans le nord du Portugal, Moledo do Minho, dans la municipalité de Caminha.
Le terrain
Pour Souto de Moura, caractéristiques du site sont plus importants que les besoins du client, surtout lorsque, comme dans Moledo, le programme a besoin d’une liste des chambres standard et le lieu est plutôt exigeant: une vaste étendue d’un colline escarpée qui surplombe la côte de l’Atlantique, mitoyenne avec terrasses agricoles à une hauteur d’environ 1,5 m, soutenues par des murs en pierre de soutènement.
Souto de Moura avait déjà abordé avant terrain similaire dans une maison Baiao, mais en Moledo, les lits étaient très proches, avec des escaliers étroits trop faibles pour fournir une plate-forme confortable sur laquelle construire. Par conséquent, le client convaincu de l’opportunité de re-modélisation entièrement à flanc de colline, avec terrasses et moins large. Ce processus a pris plusieurs années et, à la fin, c’était plus cher que la maison elle-même.
Concept
Reconquérir la maison familiale est un sujet étudié par Souto de Moura depuis de nombreuses années.
En regardant l’évolution de ses recherches semble évident que vient constamment une sorte de modèle à base de plantes, de forme rectangulaire avec deux ou trois côtés et un front aveugle, consistant généralement en un mur de fenêtres dont les éléments sont alignés sur la façade de la maison. Espaces de distribution et les aires de service occupent générée à l’intérieur.
Ce classement vient de l’idée d’une usine livrée à un ensemble d’espaces clos générant hiérarchique fonctionnel.
Espaces
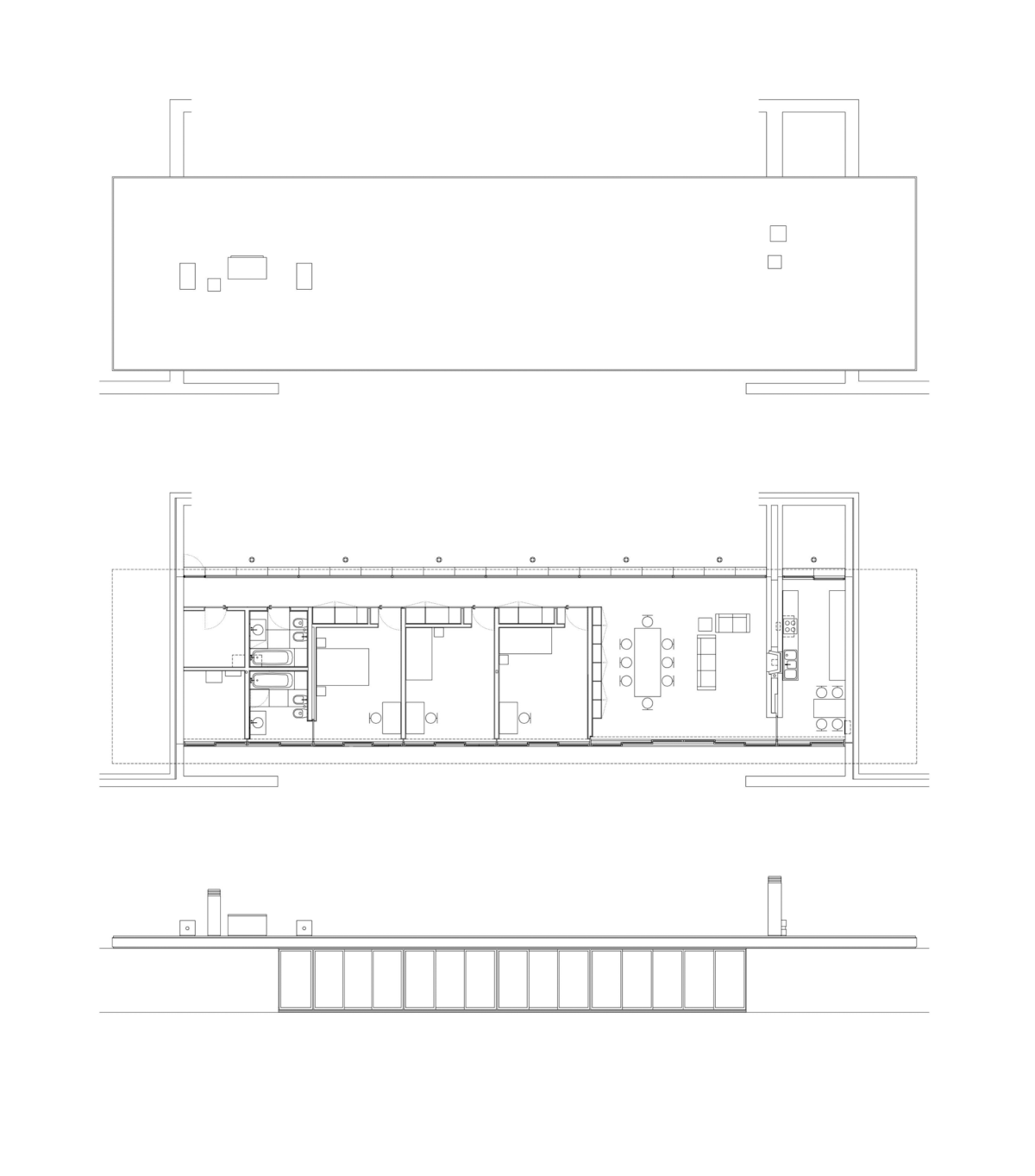
En Moledo est dans la façade où la meilleure mise au point visuelle (la ville, l’océan, etc.), Mais utilise également un Souto de Moura affleurement rocheux existant à l’arrière de la maison comme un visuel supplémentaire, réaffirmant en outre le lien entre l’environnement et l’intérieur de la maison, qui fournit également un sens de l’abri. Ceci est accompagné par la construction de murs en béton armé recouvert de pierre, physiquement introduction de l’existence de cet élément robuste et imposant.
En face de deux murs aveugles est une grande fenêtre donnant sur la diapositive océan, derrière lequel se trouvent les différentes zones de la maison, terrasse, cuisine, salon, trois chambres, deux salles de bains, une armoire-dressing, cour service et un couloir qui longe la façade du bâtiment sur la montagne.
Structure et Matériaux
Rétablir les plates-formes pour préparer un terrain fertile était laborieuse et impliquait beaucoup de travail et de maîtres maçons matériels et six camions de pierre aidé faire.
- Murs
Parois latérales aveugles sont construits avec des blocs irréguliers de granit, ancrés dans un endroit sec et paroi latérale cadre de la vitre avant.
Ces parois sont générés par deux parois parallèles de pierre de 4 cm d’espace qui a été rempli par une isolation, la conductivité de la roche est généralement élevé et il était nécessaire d’isoler du froid et de la chaleur. Au-dessus du toit plat se déroule.
A l’intérieur des murs qui divisent les différentes pièces sont faites de béton et crépi et des meubles en bois sont fixés dans le cadre de la construction d’origine. Certains murs, comme une cheminée ou d’un coin de la cuisine a été laissé dans le mur en pierre vue.
- Toiture
Le couvercle est formé par un trottoir en béton poreux recouvert d’une couche isolante constituée d’un tissu imperméable à l’eau et une couche de pierres concassées. Les entonnoirs de collecte d’eau et les gouttières sont en acier inoxydable, comme puits de ventilation faisant saillie de celui-ci. Il met également en lumière le conduit de la cheminée est dans le salon.
- Fenêtres
Les fenêtres coulissantes sont caméra frontale en verre et boiseries. La montagne face à la caméra, mais aussi avoir la garniture sont en aluminium et en verre miroir.
Les sols intérieurs sont des lattes de bois et de la plate-forme externe est faite de lames de bois aussi deux centimètres d’eux et fixée à bandes orthogonales.




























